Menu
  • Accueil
  • Notre agence
  • Ventes
    • Toutes les ventes
    • Maisons
    • Appartements
    • Commerces
    • Terrains
    • Immeubles
    • Garages
  • Nouveautés
  • Locations
    • Toutes les locations
    • Nos conditions
  • Rechercher
  • Services
    • Alerte E-mail
    • Vendre un bien
    • Estimation
    • Calculette
  • Contact

Vente - Appartements - Abbeville - 80100

[ Actif ]
Référence : 5155 - EN EXCLUSIVITE INVESTISSEMENT LOCATIF, APPARTEMENT PROCHE DU

Ville: Abbeville

Prix : 86 400€ H.A.I
dont 8.00% T.T.C d'honoraires à la charge de l'acquéreur
Prix hors honoraires : 80000€

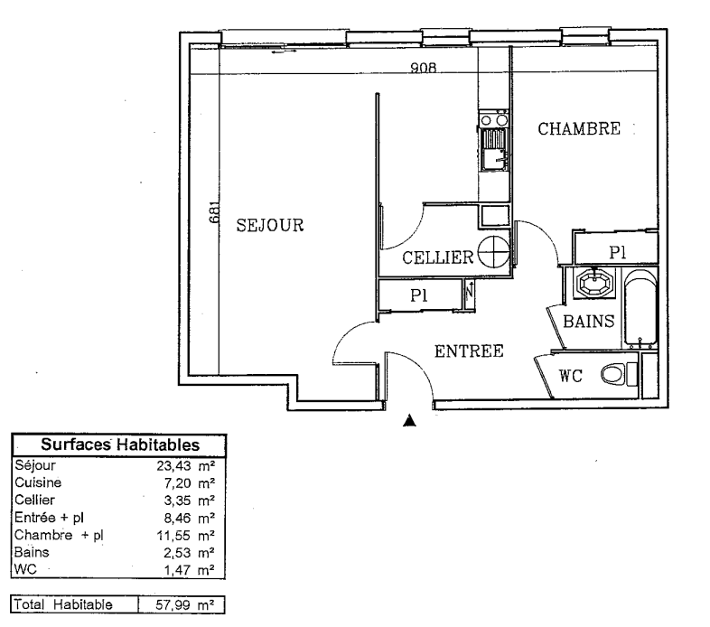
Surface habitable m²: 58
Nombre de chambres: 1
Nombre de pièces: 2

Descriptif: l'immobilier du centre vous propose à la vente en exclusivité cet appartement situé proche du centre ville d'Abbeville.
Dans une résidence avec ascenseur, cet appartement qui est au rez-de-chaussée se compose d'une grande entrée avec placards, un séjour spacieux, une cuisine, un cellier, une chambre avec placards, une salle de bain et WC indépendant.
Il possède également une place de parking extérieur et il est chauffé par des radiateurs électriques.
Cet appartement est loué 410€ + 38€ de charges.
Le montant annuel moyen des charges de copropriété est de 840 €.
La copropriété ne rencontre aucune procédure en cours.
Les informations sur les risques auxquels ce bien est exposé sont disponibles sur le site géorisques.gouv.fr.

Contactez nous

Tél.: 03 60 26 80 01
Mobile: 06 17 73 20 47

Contactez-nous

Localiser le bien

Imprimer

Retour à la liste

Bilan énergétique

Date de réalisation du DPE : 24-02-2025
Montant estimé des dépenses annuelles d’énergie pour un usage standard : entre 850€ et 1170€ par an
Prix moyens des énergies indexés au 2022 (abonnements compris)


PHOTOS
formulaire de contact

* En soumettant ce formulaire, j'accepte que les informations saisies soient exploitées dans le cadre de la demande et de la relation commerciale qui peut en découler

* champs obligatoires

vente Terrains Pont remy 80580 - vente Appartements Abbeville 80100 - vente Maisons Noyelles sur mer 80860 - location Appartements Abbeville 80100 - vente Maisons Lignieres en vimeu 80140 - vente Maisons Longpre les corps sts 80510 - vente Maisons Crecy en ponthieu 80150 - vente Maisons Ailly le haut clocher 80690 - vente Immeubles Abbeville 80100 - vente Maisons St leger les domart 80780 -

Accès agent  Accès agent - Mentions légales - Honoraires de l'agence - Confidentialité des données

creation site immobilier